Novalja – radová dvojpodlažná novostavba so záhradou a výhľadom na more
| Ponuka: | Predaj |
|---|---|
| Typ nehnuteľnosti: | Dom |
| Stav: | Novostavba |
| Miesto: | Novalja, Chorvátsko |
| Rozloha: | 110.42 m² |
| Cena za m²: | 3894 €/m² |
| Cena: | 430 000 € |
Predstavujeme Vámaj krásny radový dom v Novalji s úžitkovou plochou 110,42 m², postavený v roku 2021. Ide o kvalitnú novostavbu, ktorá je kompletne zariadená a pripravená na okamžité využívanie.
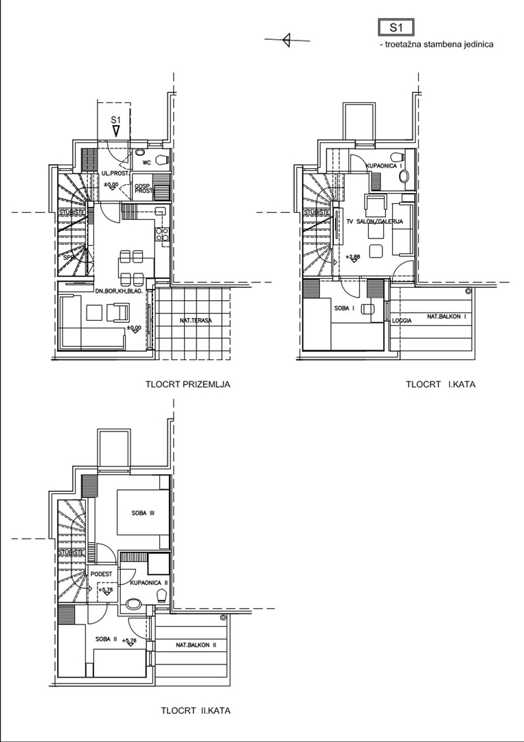
Dispozícia domu:
- Prízemie: priestranná obývačka spojená s kuchyňou a jedálňou, predsieň, toaleta, komora, odkladací priestor a krytá terasa.
- 1. poschodie: jedna spálňa, salónik, kúpeľňa a balkón.
- 2. poschodie: dve spálne, kúpeľňa a balkón.
Z každej úrovne domu sa ponúka nádherný výhľad na more.
Benefity nehnuteľnosti:
- vzdialenosť od mora a pláže Lokunje len 200 m, od centra Novalje 500 m,
- v blízkosti sú obchody, reštaurácie a všetky služby potrebné pre pohodlný pobyt,
- súčasťou je záhrada 22,35 m² a dve parkovacie miesta,
- pokojná a atraktívna lokalita vhodná na rekreáciu aj investíciu.
Naša spoločnosť vám zabezpečí kompletný realitný servis, ktorý obsahuje pomoc pri získaní financovania od chorvátskej banky. Taktiež prípadné založenie spoločnosti v Chorvátsku a jej správu, správu nehnuteľnosti a jej údržbu. Investícia pri mori tak bude pre vás pohodlná a bezstarostná. Vy si vyberiete rozsah a obdobie prípadného využitia nehnuteľnosti na jej prenájom.



























